リフォーム事例集 大阪府大東市 Nさま邸

中古物件を全面リノベーション、階段位置を変更し大空間に!

中古物件を全面リノベーション、階段位置を変更し大空間に!

大阪ガスサービスショップを信頼していただき、全面的なリノベーションをご依頼いただきました。階段の位置を変えて部屋を広くし、採光を増やし、墜面収納で整理整頓しやすい住まいにしたいといったご要望にお応えしました。1階をLDKにし、2階の寝室は窓を新たに設け天井を取り払い半分ロフトにしたので、吹き抜けのような明るく開放感のある空間になりました。

家族構成 ご本人(50代)
建物種別 戸建て
築年数 約50年
施工期間 約3ヶ月(ご検討期間/約2ヶ月)
費用 約1,400万円
施工部位 躯体以外のすべて
こだわり バリアフリー、省エネ・エコ、収納

施工内容

キッチン

お手入れラクラク、システムキッチンに

整理がしやすくなりスッキリ

一番よく使うコンロ下に、便利な引出しタイプの収納があります。

浴室

水まわりは段差のないバリアフリーに

快適なバスルーム

ゆったりお湯につかりながら楽しめるテレビつきのシステムバス。

浴室/脱衣洗濯室/トイレは、あしもとの段差がなくなりました。

屋内その他

全面的なリノベーションで、空間が広く明るく心地よく

階段が部屋を分けて使いづらい間取り

購入された築約50年の2階建住宅は、階段で部屋を間仕切っていたため、各部屋が小さく感じ、窓のない部屋もありました。

リフォーム前は急な階段でした。

階段の位置を変えて部屋を広く明るく

手すりもつけ、緩やかな階段になりました。

1階をLDKにして、クローゼットにはシステム収納を備えたため空間が広く使えるようになりました。

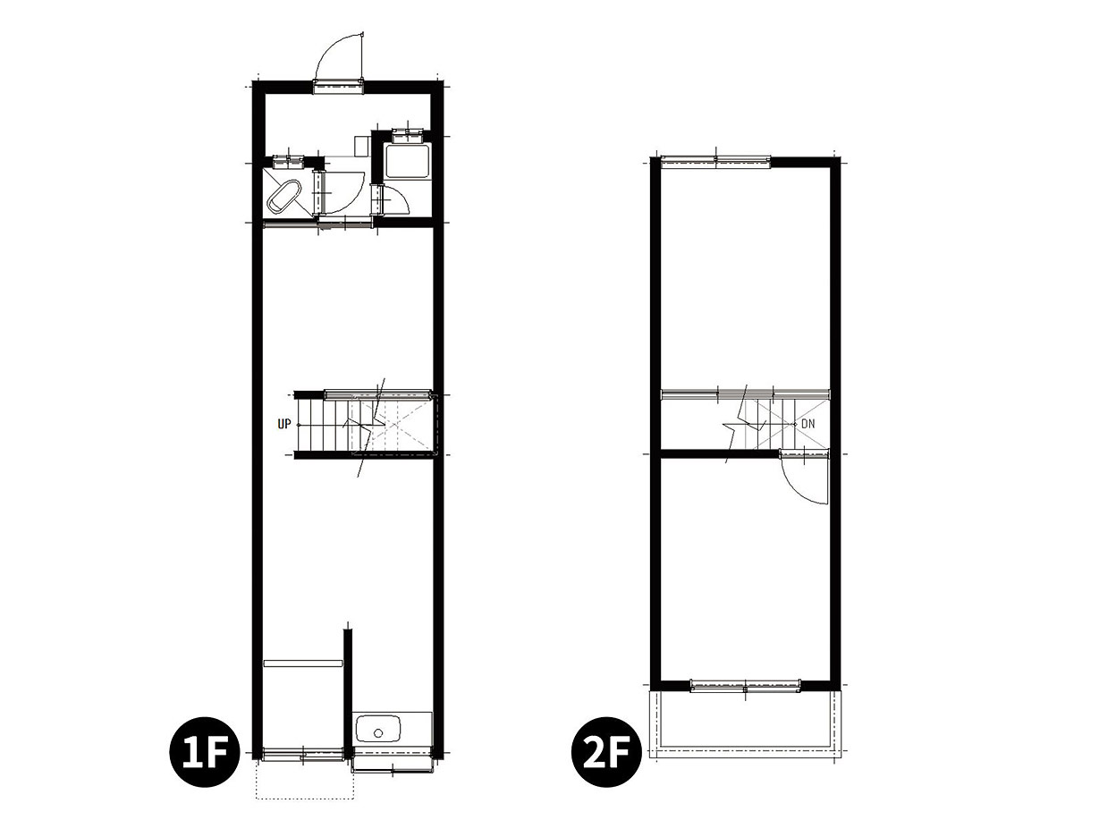
間取り

導入機器

お客さまの声

バリアフリーで将来も安心

入居したときは真冬でしたが、床暖房を設置したので、とてもあたたかく過ごせました。また、階段に手すりをつけたり、トイレを2階にも新設するなど、将来を考えた仕様にしたのでこの先の暮らしも安心できます。

担当者からのコメント

採光、収納量のアップ、隣家との遮音、ロフトがポイント

ご予算内で、お客さまのご要望を可能な限り実現することを第一にしています。今回は、ガス機器の入れ替えだけでなく、間取り変更をともなうリノベーションでしたので、ロフトなどのご提案を含めて、お客さまにとても喜ばれました。連棟タイプの建物のため、生活音が気にならないように防音シートを壁面に採用しました。また、開口部の断熱改修、エコ住宅設備の設置、バリアフリー改修などで次世代住宅ポイントの申請もしました。

キャンペーン・イベント情報

ご相談・お問い合わせ

お電話でのご相談・お申込み

大阪ガスグッドライフコール

グッドライフコールについて

窓口での相談・お申込み